Move-in ready homes that stand up to the land. Designed to welcome you home.

Engineered for extreme climates. Welcomed everywhere. Set up in hours, proven on the winter roads.

The Northbeam Frame Difference

Every C.K. RTM home sits on an overbuilt steel chassis that keeps its shape through every bend, bridge and bump.
Rustic bedroom with modern touches

Transporting homes over ice roads and into tight clearings demands more than just strength. It takes smart engineering and design. We don’t just build homes. We build a backbone strong enough to carry them where others can’t.

We engineered a proprietary Northbeam frame that keeps its shape through every bend, bridge and bump through thousands of kilometres, deep snow and ice roads. It’s not what you see, but what holds everything together.

And our signature steel chassis lets us deliver a full, finished home that lands gently, locks in tight, and stands up to years of use. the Northbeam system was designed for the realities of the North and remote communities and the needs of the families who live here. This same smart engineering and design is now welcomed.

5 Year Structural / First Winter Check

Built strong. Made beautiful. Efficiently built & delivered.

Our growth has come from repeat orders and word-of-mouth. We don’t just deliver homes, we build relationships.

Key benefits

STRUCTURAL

Durability that starts from the frame up.

Northbeam chassis

Overbuilt, engineered and field-tested for harsh delivery routes and long-term use.

Insulated and enclosed underfloor

No exposed plumbing or skirting; just clean lines and warm floors.

Weather-tough envelope

These homes have stood through –40°C winters: metal roof, triple-pane windows, and R50–R40 insulation from top to bottom.

Engineered plans + CMHC approval

Built to code, built to spec and built to last.

INTERIOR

A real home. Not a trailer. Not a box.

Beautiful finishes

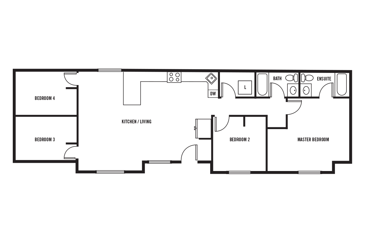
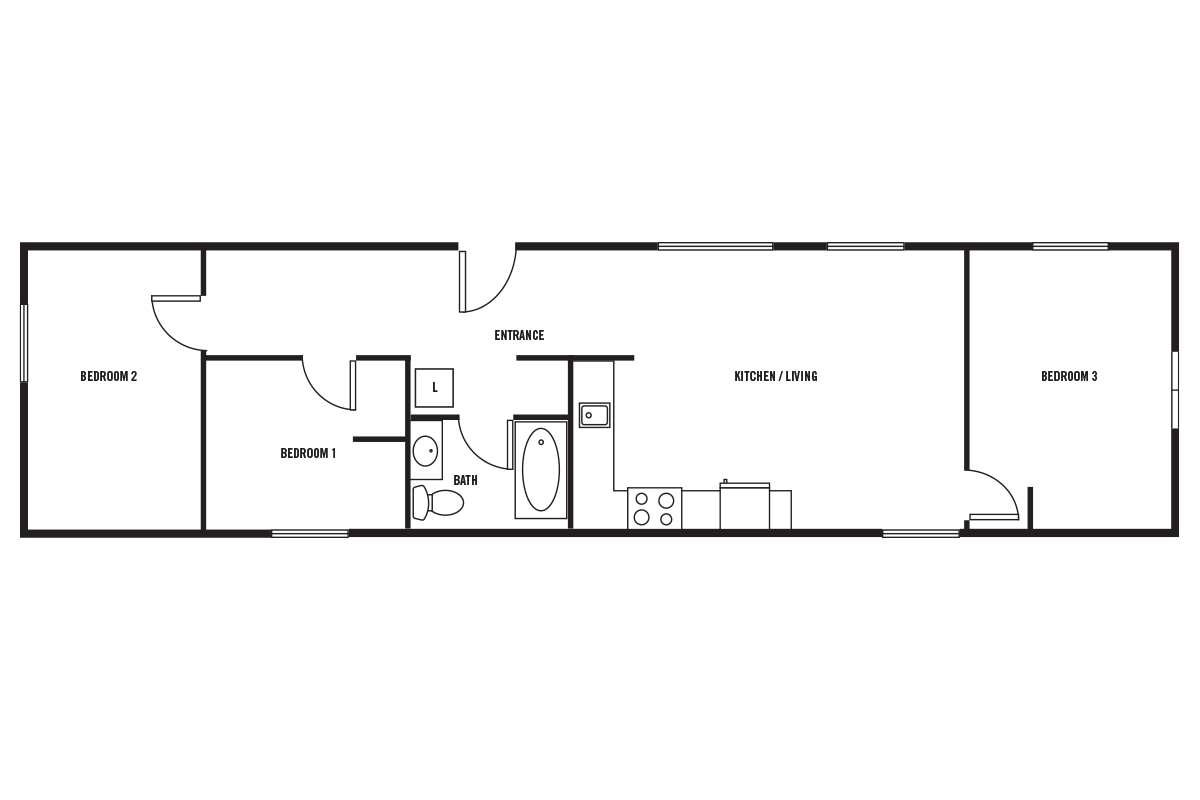
Bright layouts, warm materials and smart floorplans that feel welcoming the moment you walk in.

Full kitchen & laundry

Includes 5 stainless appliances, HRV, full-size tub and shower.

Move-in ready

Everything from lighting to paint to floors is finished with care.

Built with proven materials

Our interiors look great, and they hold up. Easy to clean, hard to wear out.

DELIVERY & SETUP

Fast, clean, and reliable from our spotless Selkirk shop.

Drop-and-hook install

No crane. No mess. Just a prepped pad and standard hookups.

Delivered where others can’t

Homes shipped through winter roads over the ice, bridges, and tough terrain.

Quick efficient setup

Drop-and-hook install model means fewer trades, less risk, and faster handover occupancy.

Are looking to buy for your community?

We invite you to tour our Selkirk facility in person. See how we build. Meet the team. Step inside a home that’s ready for your families.
Copyright © 2026 C.K Homes
Privacy Policy
Logo CK Homes Colour Reverse
Copyright © 2026 C.K Homes
Privacy Policy Created by 6P Marketing